Stareton Close, Coventry, CV4
Utilities & More
Utilities
Electricity: Mains SupplyWater: Mains Supply
Heating: Gas Central Heating
Broadband: FTTP (Fibre to the Premises)
Sewerage: Mains Supply
-
Make Enquiry
Make Enquiry
Please complete the form below and a member of staff will be in touch shortly.
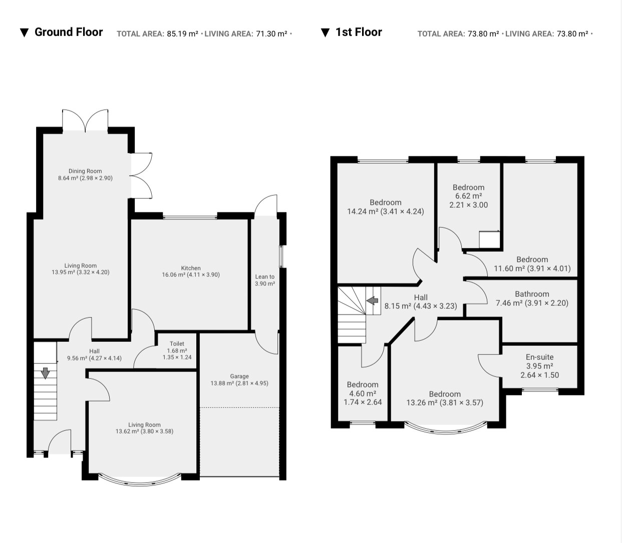
- Floorplan
- Utilities & More
Property Features
- Sought After Location Of Cannon Hill
- Master Bedroom With En-Suite
- Downstairs W/C
- Driveway & Garage Offering Off Road Parking
- South Facing Rear Garden
- Great School Catchment
- Situated close to War Memorial Park
- Great Transport Links
- EPC Expired & Reordered
Property Summary
Full Details
Property location
Cannon Hill
See the brochure section below for comprehensive overview of the property and location.
We have built the Key Facts for Buyers Guide to give you information on local schools with their ratings, satellite view so that you can see the surrounding areas, as well as local and major transport connections, and much more.
On the viewing we will provide additional information on the property and the area so that you can make an informed decision.
Refurbishments and Features
Five Bedroom Semi- Detached | Master Bedroom With En-Suite | Downstairs W/C | Under Floor Heating In Kitchen | Recently Renovated Bathroom & Kitchen | Driveway & Garage | South Facing Rear Garden
Room Measurements
Room dimensions and total floor area are included within our floor plan.
Tenure
Freehold
Outside Space
Front: Driveway | Shrubs | Path
Rear: Grass | Patio
Additional Information
Selling Position: No Upward Chain
Age of the Property: 1930’s
Last Sold: 2001
Council Tax Band: D
Local Authority: Coventry
Energy Performance Certificate Rating: TBC
Approx. Total Floor Area: 158 Sq. M.
Approx. Total Plot Size: 0.09 Acre
Heating System: Gas
Boiler Age: 11 Years
Boiler Last serviced: 2024
Boiler Location: Garage
Loft: Boarded | Insulated | Light
Type of Windows: Double Glazed
Age of Windows: 12 Years
Fuse Box Location: Under The Stairs
Garden Orientation: South
Material Information Parts B & C
History of Subsidence: No
Unsafe Cladding: No
Asbestos: No
Any Rights of Way: No
Please view the property brochure section for further Material Information Parts B and C
Disclaimer
Disclaimer
Money Laundering Regulations: Buyers will need to provide identification documents once an offer is accepted. This is required to complete anti-money laundering (AML) checks. Please note, a fee is charged per person for these checks. Property Details: The information provided does not form part of an offer or contract for the property’s sale. Measurements: All measurements are for guidance only. We recommend prospective buyers verify dimensions before incurring any expenses. Appliances and Fixtures: Bayzos has not tested any equipment, fixtures, or services. Buyers are advised to check the condition and functioning of appliances independently.
Legal Title: Bayzos has not verified the legal ownership of the property. Buyers should obtain confirmation through their solicitor.

























































