Please complete the form below and a member of staff will be in touch shortly.
Property location
Coventry
See the brochure section below for comprehensive overview of the property and location.
We have built the Key Facts for Buyers Guide to give you information on local schools with their ratings, satellite view so that you can see the surrounding areas, as well as local and major transport connections, and much more.
On the viewing we will provide additional information on the property and the area so that you can make an informed decision.
Refurbishments and Features
Re-Plastered | New Flooring | Opportunity to Extend (STPP)* | Low Maintenance Garden
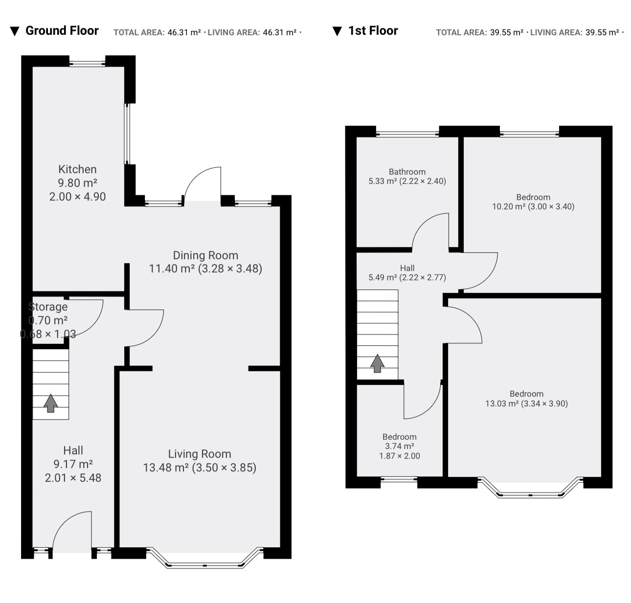
Room Measurements
Room dimensions and total floor area are included within our floor plan.
Tenure
Freehold
Outside Space
Front: Gravelled Area
Rear: Low Maintenance
Additional Information*
Selling Position: Purchasing Another Property, No Upward Chain
Last Sold: 2017
Council Tax Band: B
Local Authority: Coventry
Energy Performance Certificate Rating: D
Approx. Total Floor Area: 85 Sq. M.
Heating System: Central Heating
Boiler Age: 12 Years
Loft: Insulated, Ladder, Light
Type of Windows: UPVC
Age of Windows: Post 2010
Fuse Box Location: Under The Stairs
Garden Orientation: West (W)
* Please verify these details through the conveyancing process
Material Information Parts B & C
History of Subsidence: No
Unsafe Cladding: No
Asbestos: No
Any Rights of Way: No
Please view the property brochure section for further Material Information Parts B and C
Disclaimer
Disclaimer
Money Laundering Regulations: Buyers will need to provide identification documents once an offer is accepted. This is required to complete anti-money laundering (AML) checks. Please note, a fee is charged per person for these checks. Property Details: The information provided does not form part of an offer or contract for the property’s sale. Measurements: All measurements are for guidance only. We recommend prospective buyers verify dimensions before incurring any expenses. Appliances and Fixtures: Bayzos has not tested any equipment, fixtures, or services. Buyers are advised to check the condition and functioning of appliances independently.
Legal Title: Bayzos has not verified the legal ownership of the property. Buyers should obtain confirmation through their solicitor.
