Please complete the form below and a member of staff will be in touch shortly.
Property location
Kenilworth
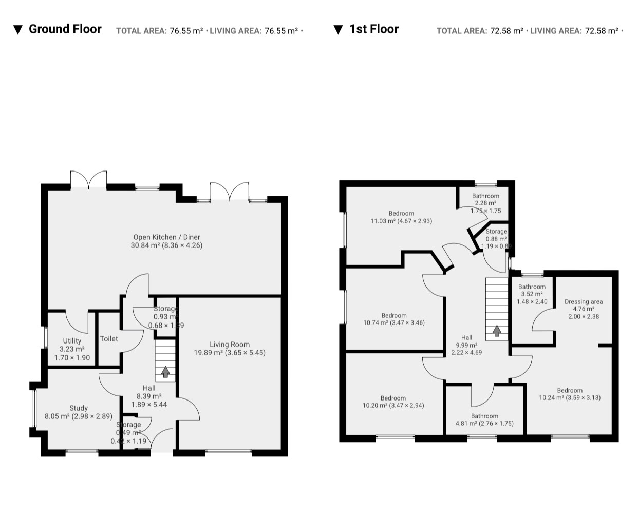
This executive detached home is located on a corner plot in a private driveway at the end of the cul-de-sac. It has a front garden to two sides of the property with bushes and an apple tree. A long driveway for up to three cars, and a single garage (complete with an electric car charger). The ground floor comprises a spacious lounge and an impressive kitchen/dining/family area that runs the width of the property with two French doors leading to the rear garden. A cloak room, visitors closet, separate utility, additional understairs storage and a study featuring a bay window complete this floor. The first floor is home to four double bedrooms, two of which benefit of ensuite shower rooms. The master bedroom benefiting of a separate dressing area with surrounding fitting wardrobes. There are high quality fitted wardrobes also in two other bedrooms. All bedrooms have access to the family bathroom. Explore this home which has abundant natural light throughout, with bright and airy rooms in every direction. The property is as new and ready to move in. It has upgraded finishes across the property, including premium tiling, modern lighting, and marble-white kitchen and utility surfaces (including windowsills). Fitted shutters were installed in front rooms for enhanced energy efficiency, plus quality blinds in all other rooms and on both kitchen French doors Not to be missed is the feature of a south-east facing, low-maintenance garden, with high quality professionally installed artificial grass perfect for playing football, tennis, or just lay down on a soft green area all year round.
£10,000 TOWARDS STAMP DUTY (subject to price/terms)
See the brochure section below for comprehensive overview of the property and location.
We have built the Key Facts for Buyers Guide to give you information on local schools with their ratings, satellite view so that you can see the surrounding areas, as well as local and major transport connections, and much more.
On the viewing we will provide additional information on the property and the area so that you can make an informed decision.
Refurbishments and Features
Driveway for 3 Cars & Single Garage | Master Bedroom With Dressing Room & En-Suite | Open Plan Kitchen/Dining & Family Room | Additional Lounge & Studio
Room Measurements
Room dimensions and total floor area are included within our floor plan.
Tenure
Freehold
Outside Space
Front: Patio Area | Large Driveway | Driveway | Shrubs | Lawn
Rear: Patio Area | Low Maintenance | Lawn
Additional Information
Selling Position: Purchasing Another Property
Age of the Property: New Build
Bought: 2021 (New Build)
Council Tax Band: G
Local Authority: Warwickshire
Energy Performance Certificate Rating: B
Approx. Total Floor Area: 153 Sq. M.
Approx. Total Plot Size: 0.1 Acre
Heating System: Central Heating (Gas)
Boiler Age: 4 Years
Boiler Last serviced: 10/10/2025
Boiler Location: Utility
Loft: Insulated
Age of Windows: 4 Years
Fuse Box Location: Hallway
Garden Orientation: Southeast (SE)
Material Information Parts B & C
History of Subsidence: No
Unsafe Cladding: No
Asbestos: No
Any Rights of Way: Yes
Please view the property brochure section for further Material Information Parts B and C
Disclaimer
Disclaimer
Money Laundering Regulations: Buyers will need to provide identification documents once an offer is accepted. This is required to complete anti-money laundering (AML) checks. Please note, a fee is charged per person for these checks. Property Details: The information provided does not form part of an offer or contract for the property’s sale. Measurements: All measurements are for guidance only. We recommend prospective buyers verify dimensions before incurring any expenses. Appliances and Fixtures: Bayzos has not tested any equipment, fixtures, or services. Buyers are advised to check the condition and functioning of appliances independently.
Legal Title: Bayzos has not verified the legal ownership of the property. Buyers should obtain confirmation through their solicitor.
