Grace Road, Millisons Wood, CV5
Utilities & More
Utilities
Water: Mains SupplyHeating: Electric Heating, Gas Central Heating
Sewerage: Mains Supply
-
Make Enquiry
Make Enquiry
Please complete the form below and a member of staff will be in touch shortly.
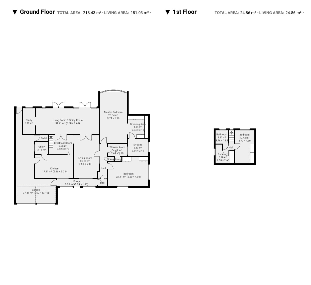
- Floorplan
- Utilities & More
Property Features
- Sought After Location Of Millison's Wood, Meriden
- Bungalow
- Master Bedroom With Dressing Area & En-Suite
- Recently Renovated Kitchen & Bathroom
- Double Garage & Large Driveway Offering Ample Parking
- Large Mature Rear Garden
- Semi Rural Feel With Good Travel Connections
- Close to Outstanding Schools In Balsall Common
- EPC Expired & Reordered
Property Summary
Full Details
Property location
Millison’s Wood, Meriden
See the brochure section below for comprehensive overview of the property and location.
We have built the Key Facts for Buyers Guide to give you information on local schools with their ratings, satellite view so that you can see the surrounding areas, as well as local and major transport connections, and much more.
On the viewing we will provide additional information on the property and the area so that you can make an informed decision.
Refurbishments and Features
Four Bedroom Bungalow | Master Bedroom With Dressing Room & En-Suite | Double Garage | Large Driveway | Utility | Shower Room | Large Mature Garden | Recently Renovated Kitchen | Recently Renovated Bathroom
Room Measurements
Room dimensions and total floor area are included within our floor plan.
Tenure
Freehold
Outside Space
Front: Large Driveway | Gravelled Area
Rear: Lawn | Patio Area | Mature Garden | Shed
Additional Information
Age of the Property: 1940-1960
Last Sold: 1997
Council Tax Band: E
Local Authority: Solihull
Energy Performance Certificate Rating: TBC
Approx. Total Floor Area: 243.29 m2
Approx. Total Plot Size: 0.67 Acre
Heating System: Gas
Boiler Age: 3 Years
Boiler Last serviced: 09.10.2022
Boiler Location: Airing Cupboard
Loft: Partially Boarded | Insulated |
Type of Windows: UPVC
Age of Windows: Over 10 Years
Fireplace: Gas | Electric
Fuse Box Location: Garage
Garden Orientation: West
Material Information Parts B & C
History of Subsidence: No
Unsafe Cladding: No
Asbestos: No
Any Rights of Way: No
Please view the property brochure section for further Material Information Parts B and C
Disclaimer
Disclaimer
Money Laundering Regulations: Buyers will need to provide identification documents once an offer is accepted. This is required to complete anti-money laundering (AML) checks. Please note, a fee is charged per person for these checks. Property Details: The information provided does not form part of an offer or contract for the property’s sale. Measurements: All measurements are for guidance only. We recommend prospective buyers verify dimensions before incurring any expenses. Appliances and Fixtures: Bayzos has not tested any equipment, fixtures, or services. Buyers are advised to check the condition and functioning of appliances independently.
Legal Title: Bayzos has not verified the legal ownership of the property. Buyers should obtain confirmation through their solicitor.



































































