Please complete the form below and a member of staff will be in touch shortly.
Property location
Allesley
See the brochure section below for comprehensive overview of the property and location.
We have built the Key Facts for Buyers Guide to give you information on local schools with their ratings, satellite view so that you can see the surrounding areas, as well as local and major transport connections, and much more.
On the viewing we will provide additional information on the property and the area so that you can make an informed decision.
Refurbishments and Features
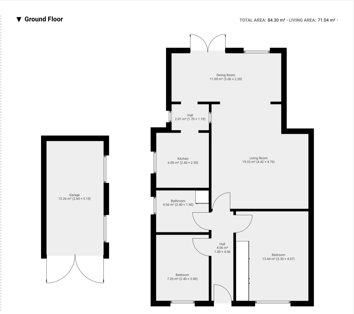
Two Bedroom Bungalow | Driveway & Garage | South Facing Rear Garden | Orangery Added To Rear Of Property |
Room Measurements
Room dimensions and total floor area are included within our floor plan.
Tenure
Freehold
Outside Space
Front: Large | Garage | Lawn
Rear: Lawn | Patio Area | Mature
Additional Information
Selling Position: Purchasing Another Property
Age of the Property: 1940-1960
Last Sold: 2014
Council Tax Band: C
Local Authority: Coventry
Energy Performance Certificate Rating: TBC
Approx. Total Floor Area: 84 Sq. M.
Approx. Total Plot Size: 0.08 Acre
Heating System: Gas
Boiler Last serviced: 3 Years
Boiler Location: Bathroom
Type of Windows: Double Glazed
Age of Windows: Orngery 2015 | Others 12 Years Old
Fireplace: Electric
Fuse Box Location: Kitchen
Garden Orientation: South
Material Information Parts B & C
History of Subsidence: No
Unsafe Cladding: No
Asbestos: No
Any Rights of Way: No
Please view the property brochure section for further Material Information Parts B and C
Disclaimer
Disclaimer
Money Laundering Regulations: Buyers will need to provide identification documents once an offer is accepted. This is required to complete anti-money laundering (AML) checks. Please note, a fee is charged per person for these checks. Property Details: The information provided does not form part of an offer or contract for the property’s sale. Measurements: All measurements are for guidance only. We recommend prospective buyers verify dimensions before incurring any expenses. Appliances and Fixtures: Bayzos has not tested any equipment, fixtures, or services. Buyers are advised to check the condition and functioning of appliances independently.
Legal Title: Bayzos has not verified the legal ownership of the property. Buyers should obtain confirmation through their solicitor.
