Hudson Vale, Coventry, CV4

£175,000 Guide Price
1 Bedrooms
1 Bathrooms
1 Receptions
  • Make Enquiry
  • Floorplan
  • View Brochure
  • Utilities & More

Property Features

  • Sought After Location Bannerbook Park
  • No Upward Chain
  • Unique Coach House
  • Quiet Location
  • South Facing Rear Garden
  • Driveway & Garage Offering Off Road Parking
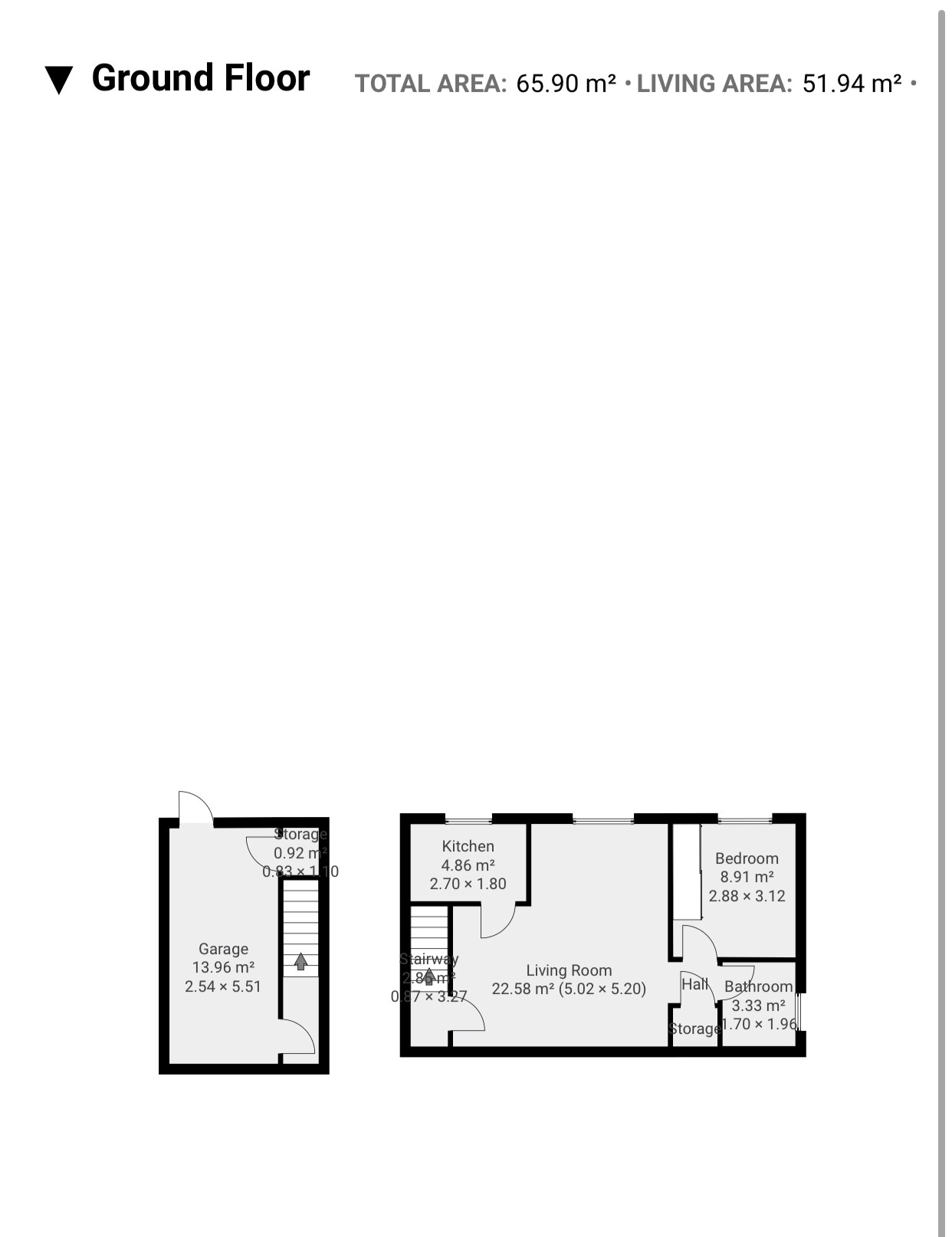
  • Approx. Floor Area 47Sq.M
  • EPC Expired & Reordered
  • Separate Side Gated Entrance
  • Light & Airy Lounge

Property Summary

Sought After Location Bannerbook Park | No Upward Chain | Unique Coach House | Quiet Location | South Facing Rear Garden | Driveway & Garage Offering Off Road Parking | Approx. Floor Area 47Sq.M | EPC Expired & Reordered | Separate Side Gated Entrance | Light & Airy Lounge

Full Details

Property location

Bannerbrook Park

 

See the brochure section below for comprehensive overview of the property and location.

 

We have built the Key Facts for Buyers Guide to give you information on local schools with their ratings, satellite view so that you can see the surrounding areas, as well as local and major transport connections, and much more.

 

On the viewing we will provide additional information on the property and the area so that you can make an informed decision.

 

Refurbishments and Features

One Bedroom Coach House | No Upwards Chain | South Facing Rear Garden | Driveway & Garage | Separate Side Gated Entrance | Light & Airy Lounge | 2 Velux Windows in Lounge | Sliding Wardrobe Doors

 

Room Measurements

 

Room dimensions and total floor area are included within our floor plan.

 

Tenure

 

Freehold

 

Outside Space

 

Front: Driveway | Shrubs

 

Rear: Lawn | Patio Area | Shrubs

 

Additional Information

 

Selling Position: No Upward Chain

Age of the Property: 2010s

Last Sold: 2009

Council Tax Band: A

Local Authority: Coventry

Energy Performance Certificate Rating: TBC

Approx. Total Floor Area: 47 Sq. M.

Approx. Total Plot Size: 0.03 Acre

Heating System: Gas

Boiler Age: 6 Years

Boiler Last serviced: 16.02.2024

Boiler Location: Kitchen

Loft: Partially Board | Insulated

Type of Windows: UPVC

Age of Windows: 17 years

Fuse Box Location: Hallway

Garden Orientation: South

 

Material Information Parts B & C

 

History of Subsidence: No

Unsafe Cladding: No

Asbestos: No

Any Rights of Way: No

 

Please view the property brochure section for further Material Information Parts B and C

Disclaimer
Disclaimer
Money Laundering Regulations: Buyers will need to provide identification documents once an offer is accepted. This is required to complete anti-money laundering (AML) checks. Please note, a fee is charged per person for these checks. Property Details: The information provided does not form part of an offer or contract for the property’s sale. Measurements: All measurements are for guidance only. We recommend prospective buyers verify dimensions before incurring any expenses. Appliances and Fixtures: Bayzos has not tested any equipment, fixtures, or services. Buyers are advised to check the condition and functioning of appliances independently.
Legal Title: Bayzos has not verified the legal ownership of the property. Buyers should obtain confirmation through their solicitor.

Mark Associate Director Bayzos
Mark
Associate Director
Working within the property industry for over twenty years there is a genuine pleasure in handing the keys and congratulating my clients and customers on their journey. Positivity, good health & exercise, happy families and really appreciating the world we live in certainly keep the smile on my face and energy flowing!